普宁又一片区“三旧”项目改造方案公示!
发布时间:2019.03.01
   2019年02月,普宁市国土资源局公示了普宁市来福实业有限公司(44528103054地块)“三旧”项目改造方案,征求公众意见。
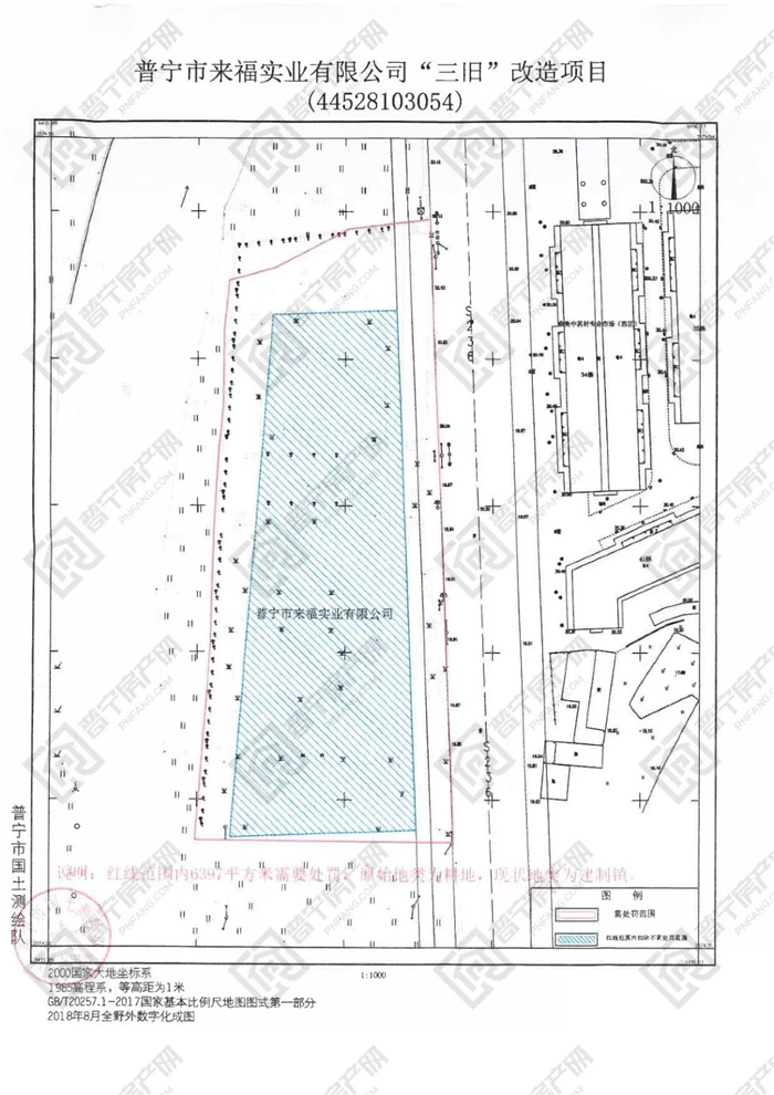
   据了解,改造地块位于揭神路大南山街道和美村路段,东至揭神路、西至香江河、南至和美村交界、北至枧头寨村交界,符合土地利用总体规划,已纳入我市“三旧”改造专项规划和2018年实施计划,并已编制“三旧”改造单元规划。
   改造项目总占地面积1.5691公顷,总建筑面积共31500平方米,容积率约为5.0。具体使用现状为:厂房用地1.5691公顷,使用权人为普宁市来福实业有限公司,目前,该厂房已不符合新一轮城乡规划,与周边现有的环境及城镇发展布局不协调,为适应新一轮土地利用总体规划和城乡规划、改善人居环境、加快区域发展、满足地方建设需要,从节约集约用地出发,该区域实施改造十分迫切。
大概位置图
▼▼▼

   该项目由普宁市来福实业有限公司改造,计划投入改造资金4.5亿元。改造后作为二类居住用地兼容零售商业用地,各项规划技术指标为:建筑密度≤45%(其中塔楼部分建筑密度≤30%)、容积率≤5.0(其中二类住宅容积率≤4.5,零售商业容积率≤0.5)、绿地率>30%、建筑高度<100米。
   预计2019年12月开工,工期3年,计划2022年12月竣工,项目同步设计、同步建设、同步验收交付使用。
   三旧改造是城市扩容提质的利器,经过三旧改造后,村民的居住条件、生活环境、收入等将会得到大大的改善。推进“三旧”改造工作,是经济社会实现可持续发展的必然选择。
   通过合理规划,能促进产业结构调整和转型升级,提升城市形象,完善城市功能,改善人居环境,期待早日改造完成!
更多分类
E-mail:wt@gdwtjt.com 电话:(0663)2825888 地址:普宁市流沙南街道环城南路揭神路口万泰集团大厦
版权所有:广东万泰集团有限公司 © 粤ICP备2021071771号